| Общая площадь | 208,6 м² |
| Гараж | 26,2 м² |
| Площадь застройки | 189,4 м²может не включать площадь террасы |
| Кубатура | 1 600 m³ |
| Высота | 9,5 m |
| Угол наклона кровли | 30° / 25° |
| Площадь крыши | 230 m² |
Первый этаж127,7 м²
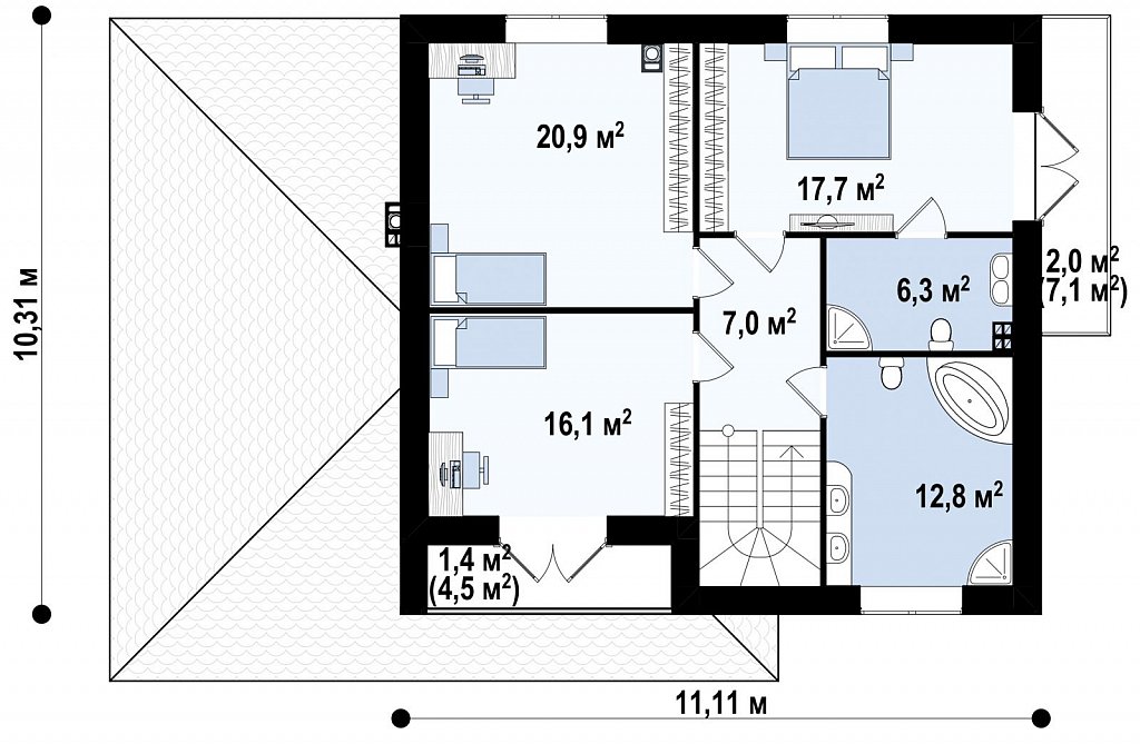
Второй этаж80,9 м²

| Общая площадь | 208,6 м² |
| Гараж | 26,2 м² |
| Площадь застройки | 189,4 м²может не включать площадь террасы |
| Кубатура | 1 600 m³ |
| Высота | 9,5 m |
| Угол наклона кровли | 30° / 25° |
| Площадь крыши | 230 m² |
Первый этаж127,7 м²
Второй этаж80,9 м²